BEISPIEL-PROJEKT NEUBAU

Keller

Tragwerk
Innenausbau
Fassade
Keller
TGA
Garage
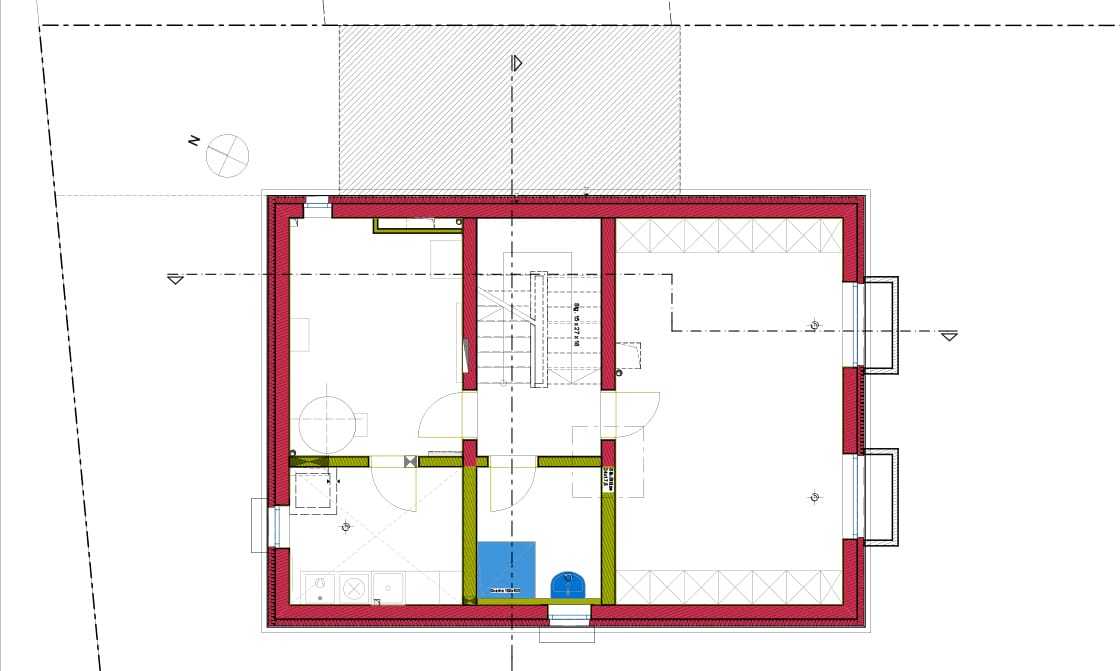
Grundriss KG
Schnitt

Standardvariante

Um eigene Varianten zu speichern, im grauen Feld „Standardvariante“ die entsprechenden Einstellungen vornehmen. Die Maske wechselt nun in den blauen Bearbeitungsmodus. Von hier ausgehend kann man die Einstellungen „als neue Variante speichern“ und hier auch nachträglich bearbeiten. Um weitere Varianten hinzuzufügen, bitte zunächst „zurück zur Standardvariante“ wechseln, um die vorgenommenen Einstellungen nicht zu überschreiben.